Skontaktuj się z nami

!! Działka z PB pod obiekt Biurowo-Produkcyjny !!

Poznań

1256250netto

Informacje szczegółowe

  • 1675m2
  • tak
  • tak
  • tak
  • tak
  • tak
  • asfaltowy
  • tak

Opis oferty

                                                             !! BEZ PROWIZJI !!
                                                                  !! BEZ PCC !!

Działka z pozwoleniem na budowę obiektu biurowo-produkcyjnego w Poznaniu to doskonała okazja dla inwestorów oraz przedsiębiorców planujących rozwój działalności w dynamicznie rozwijającym się regionie.
Działka znajduje się w atrakcyjnej lokalizacji w Poznaniu na rogu ulic Rakietowej oraz Śmigi , w pobliżu głównych arterii komunikacyjnych, co zapewnia łatwy dostęp do transportu publicznego oraz dróg ekspresowych . Warto zaznaczyć że w sąsiedztwie nieruchomości jest planowana droga , która zapewni bezpośredni dojazd do trasy S11 . Ma to byś najdroższa inwestycja drogowa w historii powiatu poznańskiego i spełniać najwyższe standardy europejskie .

Okolica charakteryzuje się rozwiniętą infrastrukturą oraz bliskością do innych kluczowych punktów, takich jak centra handlowe, obiekty logistyczne i tereny przemysłowe.

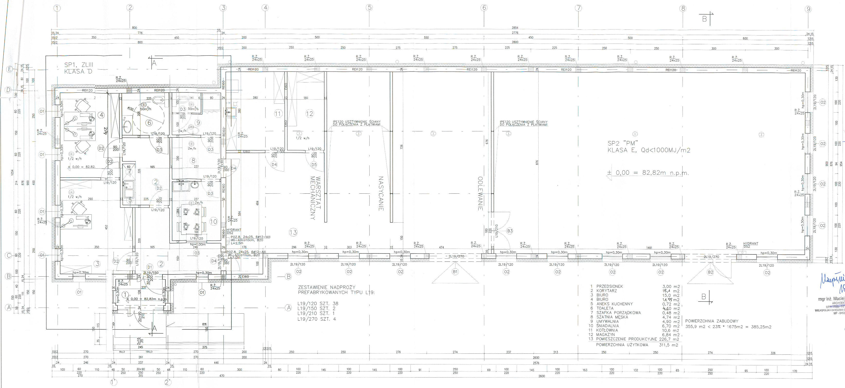
Powierzchnia działki wynosi 1675 m² na których jest wydane pozwolenie na budowę obiektu biurowo produkcyjnego o łącznej powierzchni 331,5m2 na co składa się :

Przedsionek - 3m2
Korytarz - 15,1m2
Biuro - 15m2
Biuro - 11,95m2
Śniadalnia - 6,7m2
Aneks kuychenny - 0,72m2
Łazienka - 4,6m2
Szatnia - 4,74m2
Szafka porządkowa - 0,48m2
Umywalnia - 4,9m2
Kotłownia - 10,6m2
Magazyn - 6,84m2
Pomieszczenie produkcyjne - 226,7m2
* Możliwe dokonanie zmian w pozwoleniu na budowę i dostosowanie budynku do własnych potrzeb

Działka posiada ważne pozwolenie na budowę, co przyspiesza proces inwestycyjny. W ramach dokumentacji projektowej uwzględniono wszelkie niezbędne analizy oraz opinie, zapewniając zgodność z normami budowlanymi oraz środowiskowymi.
Nieruchomość z dostępem do wszystkich mediów , takich jak prąd, woda, gaz , telefon oraz kanalizacja.

Teren oferuje szeroki wachlarz możliwości dla inwestorów z różnych branż, w tym technologii, produkcji, logistyki oraz usług. Dzięki atrakcyjnej lokalizacji oraz dostępności wykwalifikowanej kadry, działka stanowi doskonałą bazę dla rozwijającej się firmy.
Działka z pozwoleniem na budowę obiektu biurowo-produkcyjnego w Poznaniu to unikalna szansa na realizację inwestycji w jednym z najprężniej rozwijających się regionów w Polsce. Zainteresowanych prosimy o kontakt w celu uzyskania dodatkowych informacji oraz umówienia się na prezentację.

       BEZPŁATNIE POMAGAMY W DOBRANIU NAJKORZYSTNIEJSZEJ OFERTY KREDYTOWEJ
* cena netto
* powyższe ogłoszenie nie stanowi oferty

Lokalizacja (przybliżona)

Zaloguj się, żeby zobaczyć więcej szczegółów
Opiekun oferty:
Maciej Jakubowski
tel. +48 790 243 896

Masz pytania? Napisz do nas

Tą nieruchomość możesz mieć już za...
Numer oferty: 216
Używamy plików cookies, aby ułatwić Ci korzystanie z naszego serwisu oraz do celów statystycznych. Jeśli nie blokujesz tych plików, to zgadzasz się na ich użycie oraz zapisanie w pamięci urządzenia. Pamiętaj, że możesz samodzielnie zarządzać cookies, zmieniając ustawienia przeglądarki. Więcej informacji znajdziesz na podstronie Polityka prywatności.